Richard-von-Weizsäcker-Platz
Umfassende Modernisierung eines Wohn- und Geschäftshauses im Denkmal
Das Wohngebäude aus den Baujahren 1890 - 91 steht unter Denkmalschutz und liegt innerhalb eines Milieuschutzgebietes. Das 5-geschossige Eckgebäude zeigt durch die repräsentative und großzügig reichlich beschmückte Fassade einen hohen Stellenwert neben der zentralen städtebaulichen Lage am Richard-von-Weizsäcker-Platz und der direkten Sichtachse von der Hauptstraße auf das Gebäude. Das Bauvorhaben umfasste 2 Bauabschnitte. Im 1. BA wurde die Hülle des Gebäudes instandgesetzt. Im 2. BA erfolgte eine Sanierung der Innenbereiche, Wohnungen, Gewerbe, Treppenhäuser und Keller. Sämtliche Planung und Bemusterung erfolgten in Abstimmung mit der Denkmalbehörde. Die Straßenfassade mit den Stuckelementen wurde nach Erstellung einer Schadenskartierung restauratorisch saniert und nach dem ermittelten historischen Farbton gestrichen. Die Hoffassade wurde nach Aufbringen eines Dämmputzes mit einem hellen Anstrich versehen.
Bundesland
Berlin-Schöneberg
Leistungsphasen
1-9
Wohnfläche
2.430 m²
Gewerbefläche
550 m²
Bruttogeschossfläche
5.120 m²
Im Rahmen der Instandsetzungsarbeiten am Dach wurde die, nicht mehr vorhandene, repräsentative türmchenartige Überhöhung des Daches (Dachkrone) zum Richard-von-Weizsäcker-Platz nach dem historischen Vorbild wiederhergestellt. Auch das Rautenmuster konnte durch die zwei Dachziegelfarben nachgebildet werden. Die historischen Vitrinen und die Messingabdeckung der Schaufensteranlage wurden schlossermäßig behutsam instandgesetzt. Die Schaufensteranlagen aus den 60er Jahren wurden komplett erneuert. Insgesammt wurde die Ladenfassade zur Vereinheitlichung neu umgestalltet. Die vorhandenen Fenster wurden tischler- und malermäßig instandgesetzt. Die vorgefundenen Treppenhausfenster mit Bleiverglasung wurden mit passendenden Gläsern aufgearbeitet. Die Treppenhäuser wurden nach historischem Vorbild neugestaltet.
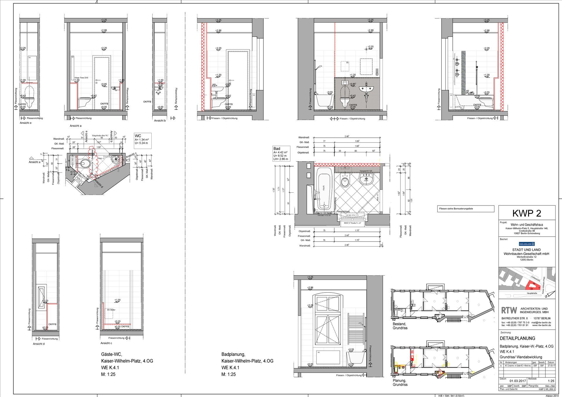
Die Gewerbeeinheiten wurden durch Grundrissänderungen umstrukturiert. Die Verkaufsfläche im 1. OG wurde zu zwei Wohnungen umfunktioniert. Die Leer-Wohnungen wurden malermäßig instandgesetzt und die Bäder modernisiert. In allen Wohnungen wurden die Öfen (Allesbrenner) durch Heizkörper ersetzt. Eine neue Gas-Zentralheizungsanlage wurde eingebaut. Des Weiteren wurden Fettabscheider für 2 Gaststätten eingebaut. Die elektrischen Hausanschlüsse wurden verstärkt.
